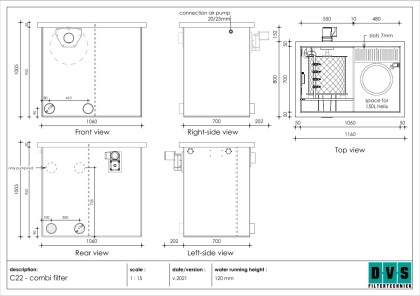
Technische Daten C22
Max. Durchfluss 22 m3/h
Schwerkraft / Airlift / Pumpversion
Gepumpte Version mit 30% Kapazitätsverlust!
Wasserspiegel Überstand 12 cm
Material:
Filterkammer PP 10/15 mm / Trommel PP 15 mm
Edelstahl 316/304 / Silikondichtungen
PP-Gehäuse mit CNC-Maschine geschnitten
Spezifikationen:
Standard Ein- und Ausgänge gem. Zeichnung
Änderungen Ein- und Ausgänge nach Absprache möglich
1 x 110 mm Schmutzablauf
Durchmesser der Trommel 40 cm x 40 cm
Patentiertes 75 micron Edelstahlsieb
2 x 90 mm Trommel-Bypass
Sprühdüsen austauschbar
Demontierbare Spülrinne
Eingebaute Spülpumpe 5 Bar
Moving Bed Kammer für 150 Liter Helix (Helix ist optional)
Eingebaute Luftscheibe 35 cm Durchmesser
50 NM Antriebsmotor mit 4 u/min
Deckel im Lieferumfang enthalten
Steuerung:
Automatische Reinigung, plug and play über Sensor mit Meßstiften
Manuelle Spülung über Spülknopf möglich
Reinigung (Zeit/Dauer) ist einstellbar
Spülniveau ist einstellbar
3 Steckdosen für Spülpumpe, Teichpumpe und Motor enthalten
Standard Trockenlaufschutz für Teichpumpe
Alle Filtermodule können ausgetauscht werden
Filterlieferung mit ausführlicher Gebrauchsanleitung
CE-Zeichen vorhanden
2 Jahre Garantie (nicht auf dem Sieb!)

Text und Bilder Quelle: DVS Filtertechnik Katalog





